Synlab

INFORMATIONS
Catégorie : Mobilité
Lieu : Fleurus
Maître d’ouvrage : Grafimmo
Période : 2017

Synlab

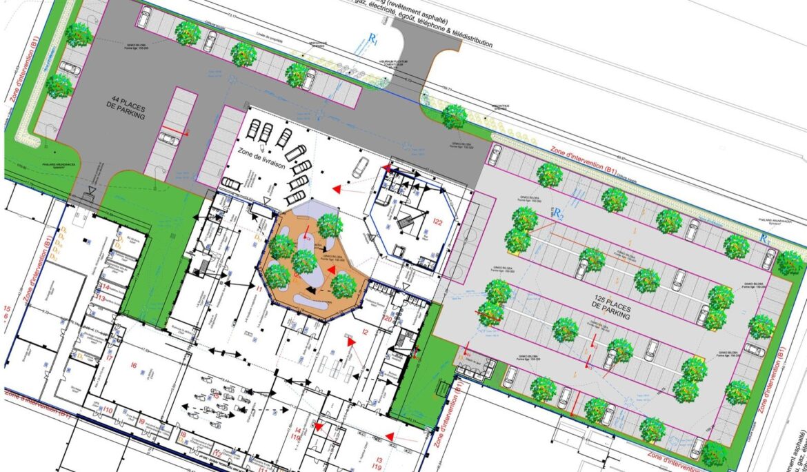
Le projet comprend l’aménagement d’une nouvelle zone de stationnement de 125 emplacements, du réaménagement de la zone de stationnement existante ainsi que la création d’une zone d’accueil.

[print_button]
Coordonnées
Bureau de Pont-à-Celles

Place Communale n°28-29, 6230 Pont-à-Celles

Bureau de Tournai ;

Chaussée d’Antoing n°55, 7500 Tournai

Bureau DDM

Rue de Namur 138a,
6041 Charleroi

bureau@ddmarchitecte.be

+ 32 (0)71 46 06 77

Bureau à Pont-à-Celles

Place Communale n°28-29,
6230 Pont-à-Celles

info@drea2m.be

+32(0)71 84 02 99

Bureau à Tournai

Chaussée d'Antoing n°55,
7500 Tournai

info@drea2m.be

+ 32 (0)69 88 42 12

(UP)