Rénovation de 51 logements de la slsp Sambre et Biesme à Farciennes

  • Accueil
  • Portfolio
  • Rénovation de 51 logements de la slsp Sambre et Biesme à Farciennes
INFORMATIONS
Catégorie : Architecture
Lieu : Farciennes
Maître d’ouvrage : Slsp Sambre et Biesme
Période : 2025

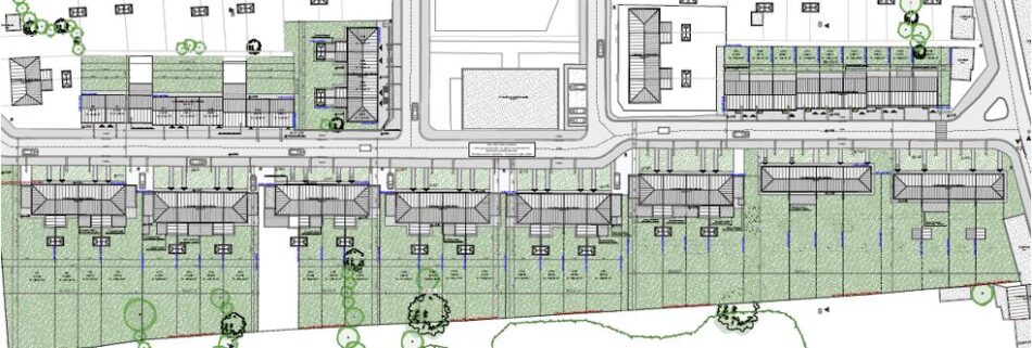
Avec l’appui des architectes de DR(EA)²M, la slsp Sambre & Biesme va pouvoir accélérer sa transition énergétique à Farciennes : le permis d’urbanisme a été délivré pour la rénovation de 51 logements à la cité Louis de Brouckère.

Ce vaste projet, qui inclut l’isolation des façades et des combles ainsi que le remplacement des châssis, vise à améliorer concrètement le confort des résidents, à embellir le quartier, et à réaliser d’importantes économies d’énergie.

Coordonnées
Bureau de Pont-à-Celles

Place Communale n°28-29, 6230 Pont-à-Celles

Bureau de Tournai

Chaussée d’Antoing n°55, 7500 Tournai

Bureau DDM

Rue de Namur 138a,
6041 Charleroi

bureau@ddmarchitecte.be

+ 32 (0)71 46 06 77

Bureau à Pont-à-Celles

Place Communale n°28-29,
6230 Pont-à-Celles

info@drea2m.be

+32(0)71 84 02 99

Bureau à Tournai

Chaussée d'Antoing n°55,
7500 Tournai

info@drea2m.be

+ 32 (0)69 88 42 12

(UP)